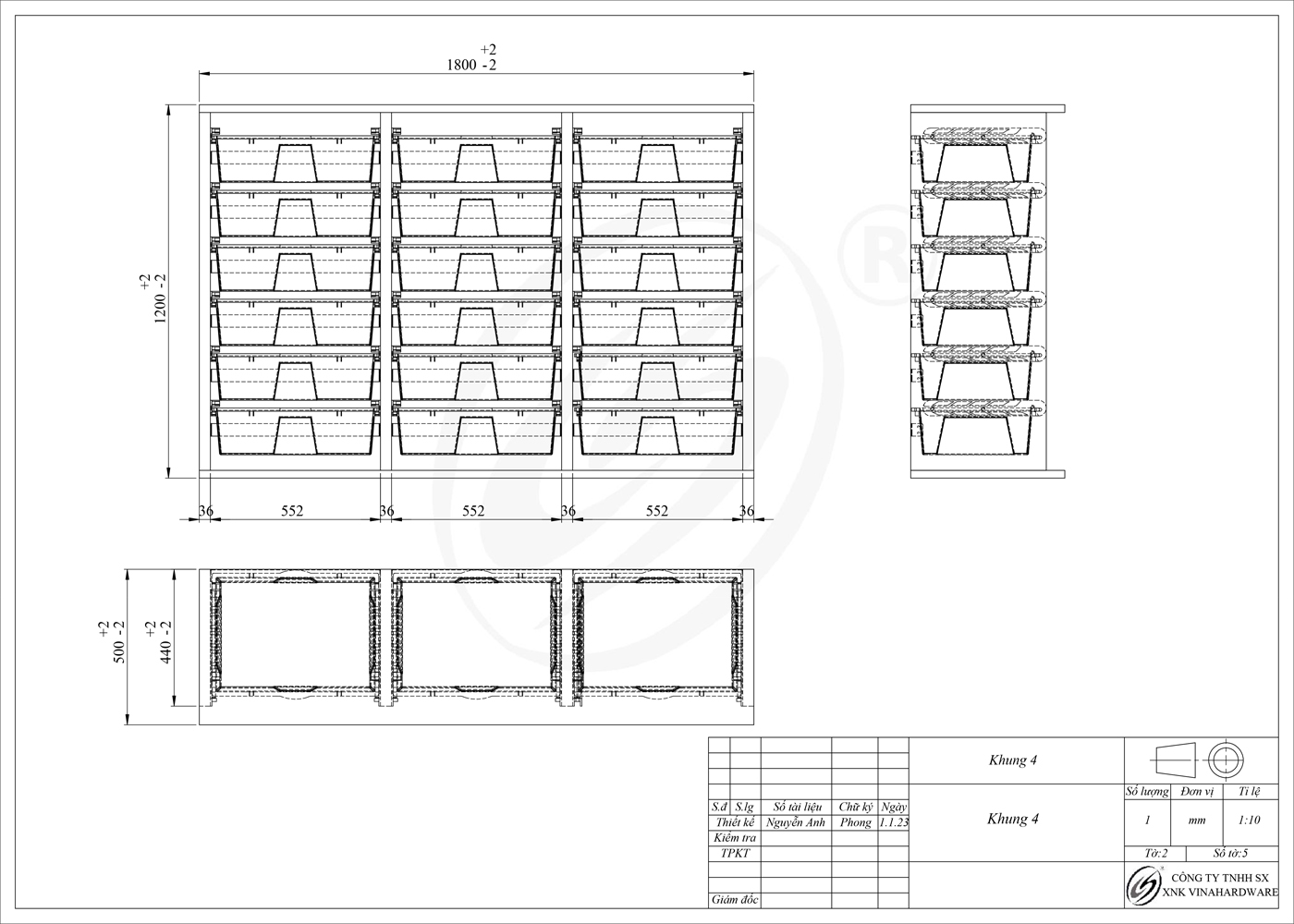
Vinahardware thiết kế các anh chị xưởng nhà máy cần bảng vẽ có thể liên hệ mang vào sản xuất cung ứng ra thị trường.
Link nội bộ => Bảng thiết kế tủ đồ chơi mẫu giáo





Vinahardware thiết kế các anh chị xưởng nhà máy cần bảng vẽ có thể liên hệ mang vào sản xuất cung ứng ra thị trường.
Link nội bộ => Bảng thiết kế tủ đồ chơi mẫu giáo




