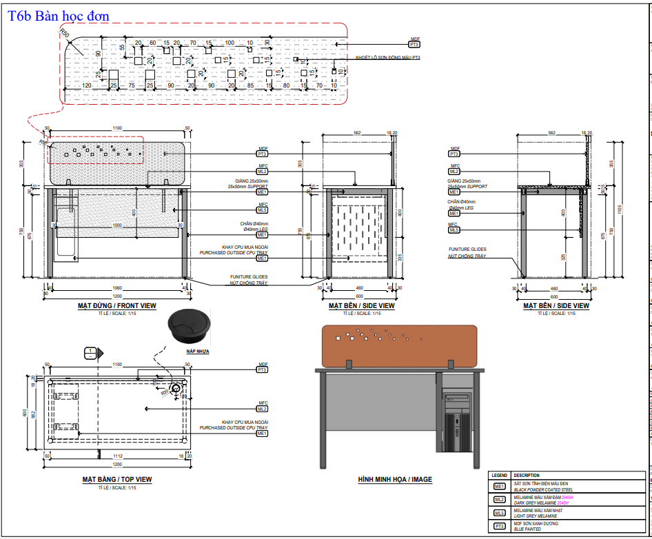
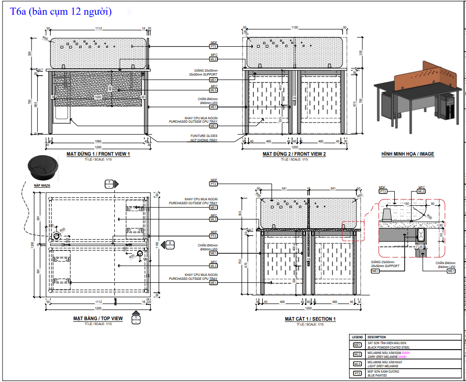
PHƯƠNG ÁN SẢN XUẤT KHUNG BÀN HỌC ĐƠN - KHUNG BÀN CỤM DỰ ÁN TRƯỜNG HỌC QUỐC TẾ
(VINAHARDWARE)**
Kính gửi Quý Khách,
Vinahardware trân trọng gửi đến Quý Khách phương án sản xuất và báo giá sơ bộ cho sản phẩm khung bàn đơn - khung bàn cụm dự án trường học
Khung bàn sắt Vinahardware được thiết kế chuyên biệt cho các dự án trường học, phòng lab, văn phòng và trung tâm đào tạo. Cấu trúc khung sử dụng thép hộp chịu lực, chân bàn lắp ráp linh hoạt, giúp tối ưu chi phí vận chuyển – dễ bảo trì – dễ thay thế trong quá trình sử dụng lâu dài.
1. Đặc điểm sản phẩm
Chất liệu chính: Thép hộp
Bề mặt: Sơn tĩnh điện – dây chuyền chuẩn ISO 9001:2015
Kết cấu:
- Chân rời tháo ráp (bulong liên kết)
- Nẹp giằng tăng cứng, chống rung
- Khay CPU / máng điện / máng dây tùy chọn
Tùy chỉnh theo dự án:
Kích thước theo module
Vách ngăn composite/HPL/nhựa ABS
Tích hợp ổ điện, hộp kỹ thuật
2. Ưu điểm
- Kết cấu vững – chắc – ổn định khi sử dụng cho nhu cầu tần suất cao (trường học/ văn phòng).
- Dễ dàng lắp ráp tại công trình, giảm thời gian nhân công.
- Thiết kế module giúp đơn vị thi công đổi kích thước – đổi màu – đổi linh kiện theo từng phòng học.
- Thích hợp lắp đặt với tất cả loại mặt bàn MDF/MFC/MeLamine/Compact.



PHƯƠNG ÁN SẢN XUẤT – VINAHARDWARE
1. Khâu Thiết kế – R&D
- Lên bản vẽ 2D/3D theo kích thước module tiêu chuẩn 1200 / 1400 / 1600 mm.
- Thiết kế kết cấu chịu lực theo tải mặt bàn + tải CPU + tải vách ngăn.
- Lập BOM vật tư: thép hộp – nẹp giằng – pat liên kết – phụ kiện.
- Tạo file hướng dẫn lắp ráp (Installation Guide) cho nhà thầu.
2. Gia công kim loại
(Chuẩn dây chuyền Vinahardware – ISO 9001:2015)
2.1. Cắt – Dập – Chấn
Cắt thép hộp bằng máy cắt CNC: đảm bảo kích thước chính xác ±0.5mm.
Dập pat liên kết bằng khuôn dập cơ / thủy lực.
Chấn nẹp & khay CPU bằng máy chấn CNC, góc chuẩn, thẩm mỹ.
2.2. Hàn
Kiểm tra mối hàn: đầy – ăn sâu – không bắn xỉ – thẩm mỹ.
Chà mài tinh, xử lý bo mép an toàn với học sinh.
3. Sơn tĩnh điện
Quy trình 4 bước: xử lý bề mặt → sơn → sấy → kiểm tra độ bám.
Màu tiêu chuẩn: đen nhám, xám ghi, trắng sữa.
Yêu cầu dự án: có thể pha màu theo mã RAL.
4. Lắp ráp thử – Test tải trọng
Lắp ráp thử toàn bộ bộ khung tại xưởng.
Test lực: tải trọng mặt bàn 80–120 kg.
Test rung lắc và độ ổn định chân.
Điều chỉnh lại kết cấu nếu cần.
5. Đóng gói – Giao hàng
Mỗi bộ khung được đóng gói carton + đai chuẩn Vinahardware.
Có tem sản phẩm – mã lô – ngày sản xuất.
Phụ kiện (bulong, pat, nẹp) đóng riêng từng túi, chống thiếu sót.
Hỗ trợ giao hàng dự án toàn quốc – cung ứng nhanh theo tiến độ công trình.



Tiếng Việt
English