PHƯƠNG ÁN TRIỂN KHAI SẢN XUẤT KỆ CHỨA BÌNH NƯỚC ĐÓNG CHAI
Mã sản phẩm: 1900.1.64134
Đơn vị sản xuất: CÔNG TY CP SX XNK VINAHARDWARE
Thiết kế kỹ thuật: Quang Nguyên – Phòng R&D Vinahardware

I. MỤC TIÊU SẢN PHẨM / PRODUCT OBJECTIVES
-
Tối ưu công năng: Kệ thiết kế tiện lợi, có khả năng chứa 10 bình nước 20L, dễ dàng di chuyển và lắp đặt.
-
Đáp ứng đa dạng dự án: Phù hợp cho siêu thị, cửa hàng tiện lợi, khu ký túc xá, trường học, văn phòng, nhà máy.
-
Chất lượng cao – Thẩm mỹ cao:
- Sơn tĩnh điện đen mờ đạt chuẩn Vinahardware Finish Standard.
- Bề mặt sạch, đồng nhất, chống rỉ sét, chịu ẩm tốt.
- Cấu trúc khung hàn chắc chắn, chịu tải trọng cao.
-
Xuất khẩu – đóng gói linh hoạt:
- Có thể tháo rời, đóng gói dạng phẳng (flat pack).
- Dễ dàng vận chuyển & lắp ráp, phù hợp thị trường xuất khẩu.
II. CẤU TẠO & PHÂN LOẠI SẢN PHẨM / PRODUCT TYPES
1️⃣ Loại có logo (Model A – With Logo)
- Gồm bảng logo thép tấm 1mm, giằng đỡ logo 40×40×1.2 mm.
- Màu sơn đen mờ, logo tùy chỉnh theo thương hiệu khách hàng.
- Dùng cho hệ thống siêu thị, đại lý nước uống hoặc chuỗi bán lẻ.
2️⃣ Loại không logo (Model B – Without Logo)
- Thiết kế tinh gọn, tối giản phần trên, tiết kiệm chi phí.
- Phù hợp khu dân dụng, trường học, khu công nghiệp.
III. THÔNG SỐ KỸ THUẬT CHUNG / TECHNICAL SPECIFICATIONS
| Hạng mục | Quy cách – Vật liệu | Ghi chú |
|---|---|---|
| Khung chính | Thép hộp 40×40×1.2 mm | Hàn cố định, sơn đen mờ |
| Thanh giằng | Thép hộp 30×30×1.2 mm | Gia cố độ cứng toàn khung |
| Giằng chéo | Thép la 2 mm | Hàn chắc chắn, đảm bảo ổn định |
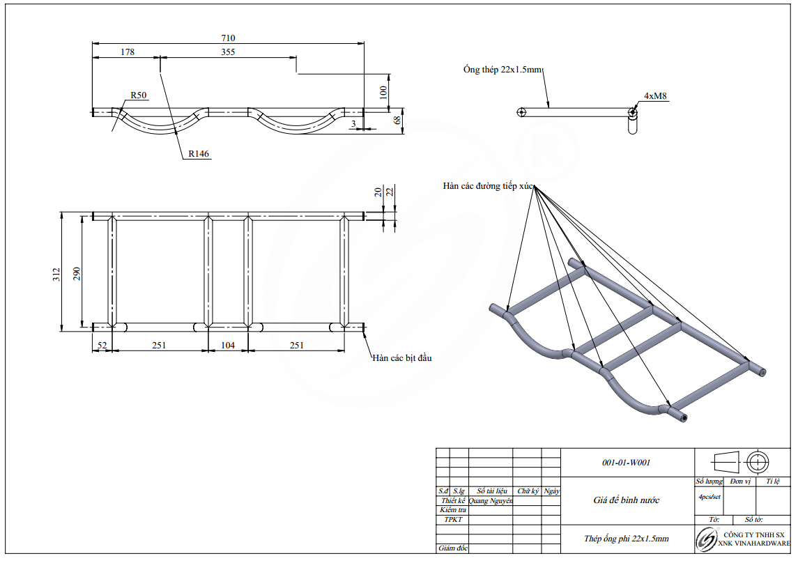
| Giá đỡ bình nước | Ống thép Φ22×1.2 mm | Mỗi tầng 2 thanh – 5 tầng chứa |
| Bảng logo (nếu có) | Thép tấm 1 mm, bo cạnh R50–R146 | Sơn tĩnh điện cùng màu khung |
| Bánh xe | 4 bánh Ø75 mm (2 bánh có khóa, 2 không khóa) | Cardinal Caster 2426T55/66 |
| Sơn hoàn thiện | Sơn tĩnh điện khô – màu đen mờ | Không nhúng nước – bền màu |
| Tải trọng an toàn | ≥ 200 kg tổng tải (test tải tĩnh và động) | Đạt tiêu chuẩn Vinahardware QC |
IV. QUY TRÌNH SẢN XUẤT / PRODUCTION PROCESS
| Giai đoạn | Nội dung công việc | Ghi chú |
|---|---|---|
| 1. Chuẩn bị vật liệu | Cắt ống hộp 40×40, 30×30, ống Φ22 theo kích thước bản vẽ. | CNC độ chính xác ±0.2 mm |
| 2. Gia công khung | Hàn định hình theo jig chuẩn, đảm bảo vuông góc. | Hàn MIG công nghiệp, bề mặt mài mỹ thuật |
| 3. Gia công giằng & logo | Dập la giằng, uốn tấm logo R50, khoan M8 lắp ghép. | Dựa theo bản vẽ 001-01-P003 |
| 4. Kiểm tra mối hàn | Mài mối hàn, bo cạnh, xử lý bavia sạch sẽ. | Chuẩn bị cho sơn |
| 5. Sơn tĩnh điện | Phun cát khô – sơn đen mờ – sấy 180–200°C. | Không qua môi trường nước |
| 6. Kiểm tra chất lượng | Test tải trọng, kiểm tra bề mặt sơn, độ phẳng. | Theo tiêu chuẩn Vinahardware ISO 9001 |
| 7. Đóng gói | Lắp thử, tháo rời – đóng thùng carton, chèn xốp. | Sẵn sàng xuất khẩu |
V. KIỂM TRA – ĐÁNH GIÁ / QUALITY ASSURANCE
Vinahardware áp dụng quy trình kiểm tra 3 bước:
-
Kiểm tra vật liệu đầu vào (IQC): Đảm bảo thép đạt tiêu chuẩn độ dày & thành phần.
-
Kiểm tra giữa quy trình (PQC): Kiểm tra mối hàn, độ vuông khung, bề mặt trước sơn.
-
Kiểm tra thành phẩm (OQC):
- Kiểm tra bề mặt sơn (test băng dính 3M, độ bám ≥ 100/100).
- Test chịu tải ≥ 200 kg (tải tĩnh).
- Kiểm tra vận hành bánh xe & kết cấu khung.
VI. TIÊU CHUẨN SẢN XUẤT VINAHARDWARE
- ISO 9001:2015 – Hệ thống quản lý chất lượng.
- Powder Coating Dry System – Không nhúng nước, phun cát khô.
- Salt Spray Test ≥ 200 giờ – Đảm bảo chống rỉ sét.
- Mối hàn mỹ thuật – sạch, đồng đều, không cháy xém.
- Đóng gói xuất khẩu – theo tiêu chuẩn EU/US carton packaging.
VII. TIẾN ĐỘ SẢN XUẤT DỰ KIẾN / PRODUCTION SCHEDULE
| Giai đoạn | Thời gian dự kiến | Bộ phận phụ trách |
|---|---|---|
| Tiếp nhận & báo giá | 1–2 ngày | KD + Kỹ thuật |
| Làm mẫu (nếu cần) | 3–5 ngày | R&D + SX mẫu |
| Sản xuất hàng loạt | 10–15 ngày | Nhà máy SX |
| Kiểm tra & đóng gói | 1–2 ngày | QC + Kho |
| Giao hàng | Theo kế hoạch dự án | Kho vận |
VIII. CAM KẾT VINAHARDWARE
- Sản xuất 100% tại nhà máy Vinahardware Việt Nam.
- Bảo hành kỹ thuật: 12 tháng cho cấu trúc khung & lớp sơn.
- Chất lượng ổn định, tiến độ chuẩn xác, hỗ trợ sau bán hàng.
- Sẵn sàng gia công OEM / ODM theo yêu cầu logo, màu sơn, bao bì.
IX. TÓM TẮT ĐỀ XUẤT
| Hạng mục | Nội dung |
|---|---|
| Mã sản phẩm | 1900.1.64134 |
| Loại A | Kệ có logo (With Branding Plate) |
| Loại B | Kệ không logo (Standard) |
| Vật liệu chính | Thép hộp 40×40 – 30×30 – Ống Φ22 mm |
| Sơn | Sơn tĩnh điện khô – màu đen mờ |
| Tải trọng | ≥ 200 kg (tĩnh) |
| Ứng dụng | Siêu thị, trường học, cửa hàng, nhà máy |
| Đóng gói | Flat-pack carton, xuất khẩu |
| Tiêu chuẩn | ISO 9001 – Vinahardware QC |
| Ưu điểm | Thẩm mỹ cao – bền – dễ lắp – linh hoạt logo |



Tiếng Việt
English