PHƯƠNG ÁN SẢN XUẤT PÁT SẮT GIƯỜNG – SƠN TĨNH ĐIỆN ĐEN
Đơn vị sản xuất: CÔNG TY CỔ PHẦN SẢN XUẤT XUẤT NHẬP KHẨU VINAHARDWARE
Nhà máy: VINAHARDWARE FACTORY – Bình Dương, Việt Nam

I. THÔNG TIN SẢN PHẨM / PRODUCT INFORMATION
| Hạng mục | Thông tin kỹ thuật | Ghi chú |
|---|---|---|
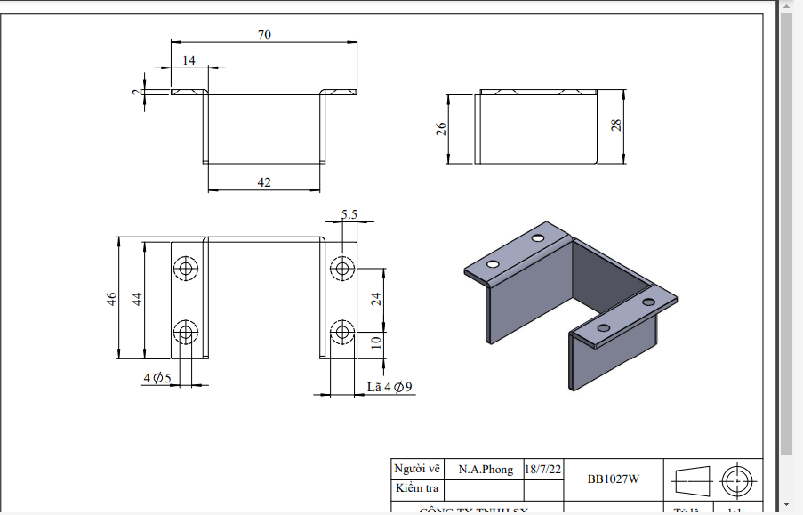
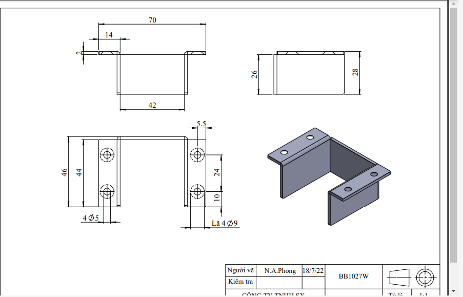
| Tên sản phẩm / Product name | Pát sắt giường – Bed bracket | Theo mẫu khách hàng cung cấp |
| Vật liệu / Material | Thép tấm dày 2.0 mm – SS400 | Cắt laser, chấn khuôn sẵn |
| Kích thước / Dimensions | Theo bản vẽ kỹ thuật khách hàng đính kèm | Dung sai ±0.2 mm |
| Khuôn / Mould | Dùng khuôn chấn có sẵn tại Vinahardware | Không phát sinh phí khuôn |
| Bề mặt hoàn thiện / Surface finish | Sơn tĩnh điện màu đen mờ (black matte) | Phun cát trước khi sơn, không nhúng nước |
| Ứng dụng / Application | Lắp ráp khung giường, khung thép nội thất | Dự án nội thất & OEM |
II. QUY TRÌNH SẢN XUẤT / PRODUCTION PROCESS
1️⃣ Tiếp nhận yêu cầu – Báo giá / Quotation Phase
- Vinahardware tiếp nhận hình ảnh, bản vẽ kỹ thuật, yêu cầu vật liệu & bề mặt.
- Báo giá sơ bộ dựa trên vật liệu, số lượng và quy trình sơn tĩnh điện.
- Khách hàng xác nhận báo giá chính thức để lên đơn hàng sản xuất.
Quotation is based on available tooling and technical drawing.
Once confirmed, Vinahardware proceeds to order preparation.
2️⃣ Xác nhận đơn hàng / Order Confirmation
- Hai bên ký Đơn hàng sản xuất (PO) hoặc email xác nhận.
- Khách hàng đặt cọc 30–50% (nếu đơn hàng theo dự án).
- Bộ phận kỹ thuật Vinahardware rà soát lại bản vẽ, kích thước và phương pháp sơn.
After PO confirmation, Vinahardware reviews the drawing and starts material preparation.
3️⃣ Quy trình sản xuất / Manufacturing Steps
| Giai đoạn | Công đoạn | Ghi chú |
|---|---|---|
| Cắt thép | Cắt laser CNC tấm 2.0 mm | Đảm bảo chính xác ±0.2 mm |
| Chấn định hình | Sử dụng khuôn có sẵn tại Vinahardware | Không phát sinh chi phí khuôn |
| Mài – xử lý bề mặt | Bo cạnh, mài phẳng vị trí hàn, làm sạch dầu | Chuẩn bị trước sơn |
| Phun cát kỹ thuật (sandblasting) | Làm nhám tăng độ bám sơn | Không dùng môi trường nước |
| Sơn tĩnh điện khô (powder coating) | Màu đen mờ, sấy khô 180–200°C | Độ bám cao, bền màu, chống rỉ |
| Kiểm tra & đóng gói | QC kích thước, màu, bề mặt, đóng gói chống trầy | Theo tiêu chuẩn xuất xưởng Vinahardware |
III. TIÊU CHUẨN CHẤT LƯỢNG / QUALITY STANDARD
-
Công nghệ: Sơn tĩnh điện khô (dry powder coating), không dùng dung môi hoặc nước.
-
Độ dày lớp sơn: ≥ 70 µm.
-
Độ bám sơn: Đạt chuẩn Cross Hatch 100/100 (ASTM D3359).
-
Độ phẳng, sắc cạnh: Không ba via, không cong vênh.
-
Kiểm tra QC: 100% sản phẩm được kiểm tra ngoại quan và độ chính xác trước đóng gói.
Vinahardware standard: Smooth edge – strong adhesion – consistent color – rust resistance.
IV. THỜI GIAN VÀ MOQ / LEAD TIME & MOQ
| Nội dung | Thời gian / Số lượng | Ghi chú |
|---|---|---|
| Báo giá & xác nhận đơn hàng | 1–2 ngày | Sau khi nhận đủ thông tin |
| Sản xuất hàng mẫu (nếu cần) | 3–5 ngày | Gửi ảnh hoặc mẫu thật duyệt |
| Sản xuất hàng loạt | 7–10 ngày | Tùy số lượng |
| MOQ (Minimum Order Quantity) | 200–300 pcs / mã sản phẩm | Đảm bảo tối ưu chi phí sơn & vận hành máy |
V. CAM KẾT VINAHARDWARE / VINAHARDWARE COMMITMENTS
- 100% sản xuất tại nhà máy Vinahardware Việt Nam.
- Không phát sinh phí khuôn.
- Bề mặt sơn đều, bền màu, chống rỉ, thẩm mỹ cao.
- Quy trình QC nghiêm ngặt, báo cáo ảnh kiểm tra trước xuất xưởng.
- Chủ động tiến độ, linh hoạt điều chỉnh MOQ theo dự án.
All products are 100% made in Vinahardware factory, Vietnam.
No mould fee required – Powder coating with high aesthetic and durability.
Strict QC with full photo inspection before delivery.
Tiếng Việt
English
