PHƯƠNG ÁN SẢN XUẤT – MÁNG HỘP ĐIỆN TREO DỰ ÁN BÀN GHẾ TÒA NHÀ
Mã sản phẩm (tham khảo): 1900.1.05106 – Hanging Power Cable Duct
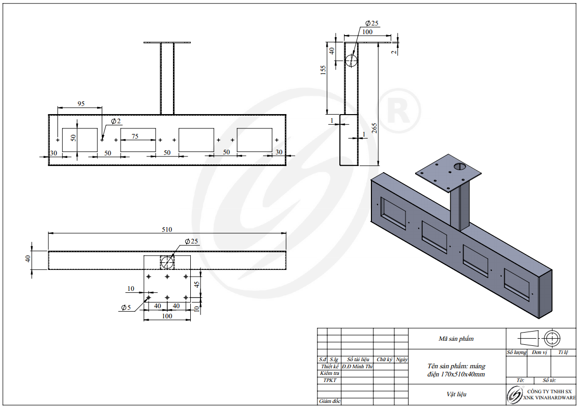
Kích thước bản vẽ: 170 × 510 × 40 mm
Đơn vị sản xuất: CÔNG TY CỔ PHẦN SẢN XUẤT XUẤT NHẬP KHẨU VINAHARDWARE

I. MỤC TIÊU SẢN PHẨM / PRODUCT OBJECTIVES
- Cung cấp giải pháp máng hộp điện treo cho hệ thống kỹ thuật điện – mạng trong tòa nhà, văn phòng, trung tâm thương mại, nhà máy, trường học.
- Đảm bảo an toàn điện, độ bền cơ học và tính thẩm mỹ cao cho các công trình hiện đại.
- Sản xuất theo tiêu chuẩn quản lý chất lượng ISO 9001:2015 – hệ thống Vinahardware, đảm bảo đồng bộ thiết kế và kiểm soát từng công đoạn.
II. QUY TRÌNH TRIỂN KHAI DỰ ÁN / PROJECT IMPLEMENTATION PROCESS
| Giai đoạn |
Nội dung công việc |
Bộ phận phụ trách |
| 1️⃣ Xác nhận yêu cầu |
Tiếp nhận yêu cầu kỹ thuật, kích thước, màu sắc, vị trí lắp đặt từ khách hàng/dự án. |
Kinh doanh + Kỹ thuật |
| 2️⃣ Báo giá sơ bộ |
Tính toán vật tư, gia công, sơn – gửi báo giá dựa trên khối lượng và yêu cầu kỹ thuật. |
Kinh doanh |
| 3️⃣ Thiết kế kỹ thuật |
Lên bản vẽ 2D/3D theo yêu cầu, xác nhận thông số chi tiết (kích thước, vị trí lỗ, nắp, ngàm treo…). |
R&D + Kỹ thuật |
| 4️⃣ Sản xuất & duyệt mẫu |
Gia công mẫu kỹ thuật, hoàn thiện bề mặt, sơn thử – gửi khách xác nhận mẫu. |
Xưởng mẫu |
| 5️⃣ Xác nhận đơn hàng |
Khách hàng duyệt mẫu & báo giá → ký xác nhận đơn hàng chính thức (PO). |
KD + Kỹ thuật |
| 6️⃣ Sản xuất hàng loạt |
Sản xuất theo quy trình tiêu chuẩn Vinahardware. |
Nhà máy SX |
| 7️⃣ Kiểm tra & đóng gói |
Kiểm tra kích thước, sơn, lắp ráp, đóng gói an toàn. |
QC + Kho |
| 8️⃣ Giao hàng |
Giao tại nhà máy Vinahardware hoặc địa điểm dự án. |
Kho vận |
III. THÔNG SỐ KỸ THUẬT / TECHNICAL SPECIFICATIONS
| Hạng mục |
Thông tin chi tiết |
Ghi chú |
| Tên sản phẩm |
Máng hộp điện treo (treo trần hoặc tường kỹ thuật) |
Phục vụ hệ thống điện – mạng – viễn thông |
| Kích thước |
170 × 510 × 40 mm (hoặc tùy chỉnh theo yêu cầu dự án) |
Theo bản vẽ kỹ thuật số 1900.1.28265 |
| Vật liệu |
Thép tấm SPCC / SS400 dày 1.0 – 1.2 mm |
Đảm bảo độ cứng và bền tải |
| Bề mặt hoàn thiện |
Sơn tĩnh điện khô – công nghệ phun cát |
Không qua nước, bền màu, chống rỉ |
| Màu sắc |
Trắng / Đen mờ / Ghi xám hoặc màu RAL tùy yêu cầu |
Sơn phủ ≥ 70 µm |
| Công nghệ sản xuất |
Cắt CNC – Dập định hình – Hàn – Mài – Sơn tĩnh điện |
Quy trình khép kín |
| Tiêu chuẩn kiểm tra |
ISO 9001:2015 – Vinahardware QC Standard |
|
IV. QUY TRÌNH SẢN XUẤT / MANUFACTURING PROCESS
| Bước |
Công đoạn |
Mô tả chi tiết |
| 1. Cắt vật liệu (Cutting) |
Cắt tấm thép bằng máy CNC theo bản vẽ 170×510×40 mm. |
Sai số ≤ ±0.2 mm |
| 2. Dập định hình (Forming) |
Dập tạo nắp, thân, lỗ kỹ thuật và gân tăng cứng. |
Sử dụng khuôn tiêu chuẩn |
| 3. Hàn – mài – xử lý góc (Welding & Finishing) |
Hàn MIG/TIG, mài phẳng, xử lý mép cạnh. |
Đảm bảo thẩm mỹ cao |
| 4. Phun cát khô (Sandblasting) |
Tạo nhám và làm sạch dầu, giúp sơn bám chắc. |
Không qua nước |
| 5. Sơn tĩnh điện (Powder Coating) |
Phun sơn khô, sấy 180–200°C, màu tùy chọn. |
Bề mặt mịn, bền màu |
| 6. Kiểm tra kích thước (QC) |
Kiểm tra 100% kích thước, màu sắc, độ bám sơn. |
Theo tiêu chuẩn Vinahardware |
| 7. Đóng gói (Packing) |
Dùng túi PE, bọc xốp, thùng carton 5 lớp. |
Giao hàng an toàn |
V. KIỂM SOÁT CHẤT LƯỢNG / QUALITY CONTROL CRITERIA
| Tiêu chí kiểm tra |
Tiêu chuẩn Vinahardware |
| Độ chính xác kích thước |
±0.3 mm |
| Độ bám sơn |
100/100 (Cross Hatch Test – ASTM D3359) |
| Độ dày lớp sơn |
≥ 70 µm |
| Độ phẳng & góc cạnh |
≤ 0.2 mm sai lệch |
| Độ bền chống rỉ sét |
Salt Spray ≥ 200 giờ |
| Thẩm mỹ bề mặt |
Sơn đều, không trầy, không cháy sơn |
VI. ƯU ĐIỂM SẢN PHẨM / PRODUCT ADVANTAGES
- Lắp đặt dễ dàng, bền chắc, có thể treo trần hoặc gắn tường kỹ thuật.
- Thiết kế tối ưu, tinh gọn, giúp hệ thống dây điện và ổ cắm an toàn, thẩm mỹ.
- Bề mặt sơn bền, sạch, màu đồng nhất, phù hợp tiêu chuẩn công trình cao cấp.
- Giá thành cạnh tranh, nhận hàng trực tiếp tại nhà máy Vinahardware.
- Có thể tùy chỉnh kích thước, màu, và phụ kiện (nắp, khớp nối, logo) theo từng dự án.
VII. THỜI GIAN & GIAO HÀNG / LEAD TIME & DELIVERY
| Giai đoạn |
Thời gian dự kiến |
Ghi chú |
| Báo giá & xác nhận mẫu |
2–3 ngày |
Sau khi nhận yêu cầu kỹ thuật |
| Sản xuất mẫu thử |
5–7 ngày |
Gửi ảnh hoặc mẫu thực tế duyệt |
| Sản xuất hàng loạt |
10–15 ngày |
Theo khối lượng đơn hàng |
| QC & Đóng gói |
1–2 ngày |
Kiểm tra toàn bộ sản phẩm |
| Giao hàng |
Theo kế hoạch dự án |
Nhận tại nhà máy hoặc giao tận nơi |
VIII. CAM KẾT VINAHARDWARE
- Sản xuất 100% tại nhà máy Vinahardware Việt Nam.
- Đảm bảo chất lượng – đúng tiến độ – giá thành hợp lý.
- Sơn tĩnh điện khô, công nghệ phun cát, không qua nước, bền màu, chống rỉ.
- QC kiểm tra 100% trước khi xuất xưởng.
- Hỗ trợ thiết kế kỹ thuật, báo giá nhanh và cải tiến mẫu theo yêu cầu dự án.
IX. TÓM TẮT ĐỀ XUẤT / SUMMARY
| Hạng mục |
Thông tin |
| Tên sản phẩm |
Máng hộp điện treo – Hanging Power Duct |
| Kích thước |
170×510×40 mm (hoặc theo yêu cầu) |
| Vật liệu |
Thép tấm 1.0–1.2 mm SPCC / SS400 |
| Công nghệ |
CNC – Dập – Hàn – Sơn tĩnh điện khô |
| Tiêu chuẩn QC |
ISO 9001:2015 – Vinahardware Standard |
| Màu sắc |
Đen mờ / Trắng / Ghi xám RAL |
| Ứng dụng |
Tòa nhà, văn phòng, trường học, nhà máy |
| Ưu điểm |
Thẩm mỹ cao – Bền – Dễ lắp – Giá tốt |
| Địa điểm nhận hàng |
Nhà máy Vinahardware – Bình Dương |