Dự án bàn đào tạo, bàn văn phòng, bàn họp trường đại học



Vinahardware xin gửi phương án sản xuất cho các dòng bàn đào tạo theo yêu cầu như sau:
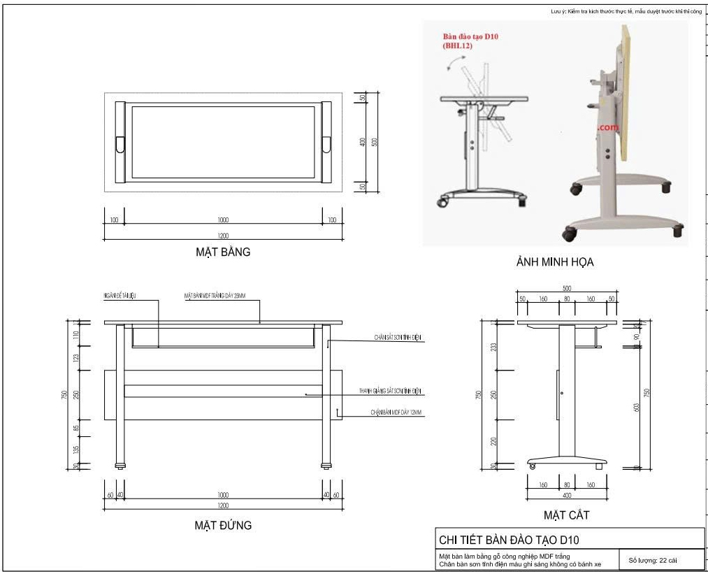
1. Bàn đào tạo xếp gọn mặt bàn
-
Sử dụng cơ cấu gấp mặt bàn bằng cơ khí theo mẫu tiêu chuẩn Vinahardware, tích hợp lò xo trợ lực và cơ cấu thép đảm bảo độ bền cao, thao tác gấp mở nhẹ nhàng, an toàn trong quá trình sử dụng.
-
Khung chân bàn sản xuất từ thép dày 2.0mm, đảm bảo độ chắc chắn và ổn định.
-
Ống chân bàn sử dụng ống thép oval 30×60×1.4mm, tạo độ cứng tốt và thẩm mỹ cao.
-
Mục tiêu: bền chắc – vận hành êm – phù hợp môi trường đào tạo sử dụng liên tục.
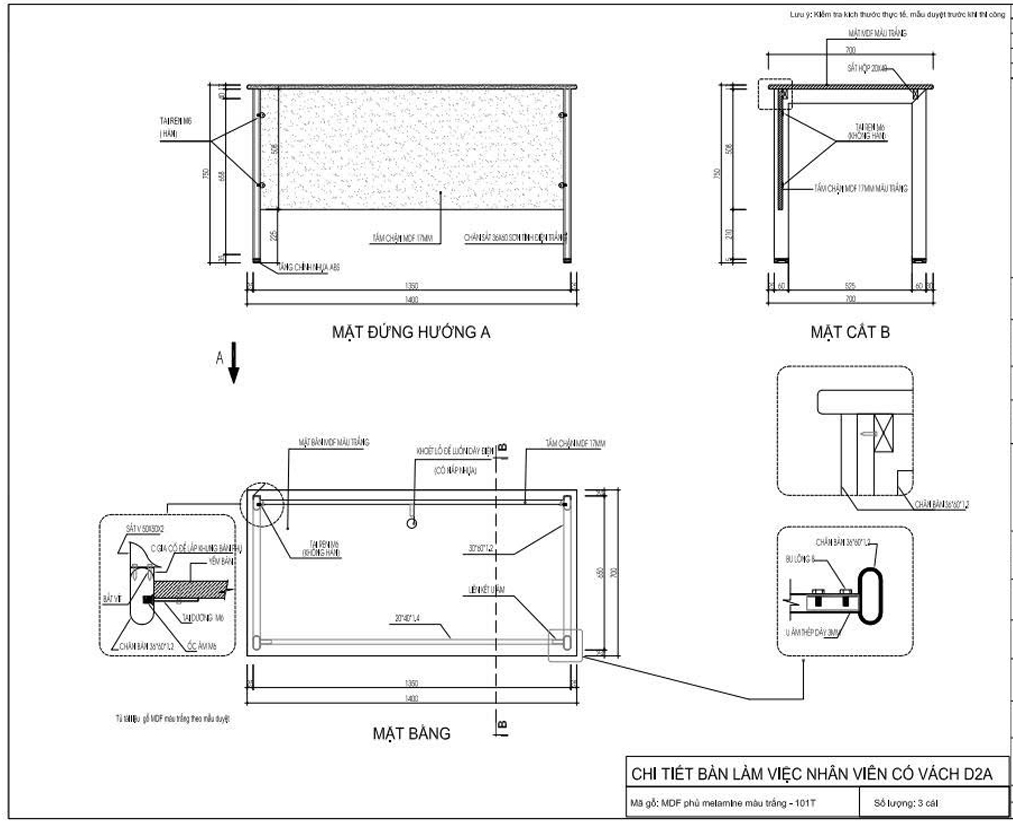
2. Khung bàn chân Oval (phiên bản tháo lắp nhanh)
-
Sản xuất theo thiết kế, đảm bảo kết cấu lắp ráp – tháo nhanh bằng cơ cấu ngàm siết bắt nhanh.
-
Giúp tối ưu vận chuyển, lưu kho và lắp đặt tại công trình, đặc biệt phù hợp các mô hình dự án triển khai số lượng lớn hoặc cần linh động thay đổi bố trí không gian.
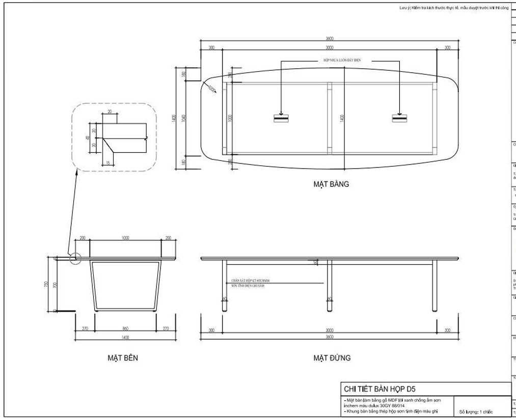
3. Khung bàn chân hình thang
-
Kết cấu hàn cố định toàn khung, đảm bảo độ vững chắc và độ bền cao trong sử dụng lâu dài.
-
Thanh giằng ngang sử dụng cơ cấu ngàm răng cưa, cho phép lắp ráp nhanh mà vẫn đảm bảo liên kết chắc chắn, dễ dàng bảo trì hoặc tháo rời khi cần.
Quy trình triển khai
-
Chốt phương án kỹ thuật và màu sắc hoàn thiện.
-
Sản xuất mẫu và gửi khách xác nhận thực tế.
-
Sau khi chốt mẫu → tiến hành sản xuất hàng loạt theo tiến độ.
Tiêu chí chất lượng Vinahardware
-
Sơn tĩnh điện công nghiệp sấy khô, bền màu, có khả năng chống rỉ sét cao theo điều kiện khí hậu Việt Nam.
-
Các mối hàn được xử lý làm sạch và thẩm mỹ, đảm bảo sự tinh gọn và đồng nhất trên toàn bộ sản phẩm.
-
Quy trình sản xuất được kiểm soát theo tiêu chuẩn nội bộ nhằm đảm bảo độ bền – độ an toàn – thẩm mỹ.
Vinahardware rất mong được đồng hành cùng Quý Đối Tác trong việc triển khai và phát triển sản phẩm một cách hiệu quả – ổn định – lâu dài.
Trân trọng!
Tiếng Việt
English